搜房源
发布信息
服务热线:15601084512

客服微信>>

手机站 北京 天津 河北 辽宁 山东 其他站 发布信息

天津厂库房网> 天津商铺综合楼出租>南开商铺综合楼出租

南开黄河道临街 周边商业配套齐全 交通便利 提供物业能源

编号:147945

区域:

天津- 南开

类别:

商铺综合楼出租

占地面积:

8900平米

价格:

面议

房屋面积:

8900平米

层高:

分割面积:

地址:

格调中心

浏览:

白女士

详细信息

本楼位于城市核心区域,交通便利,紧邻地铁和公交站,周边商业配套齐全,便于企业日常运营和员工出行。目前出租面积从50平方米到整层不等,相金根据面积和楼层不同有所差异。一般而言,低楼层的租金比较亲民,具体租金的价格需根据企业需求和租赁面积进行协商。本楼内配备中央空调,高速网络,智能安防等现代化设施,确保企业办公坏境舒适,安全,高效。本楼由专业的物业管理公司负责日常清洁维护,设备维护保养等全方位服务,确保企业入驻之后无后顾之忧。

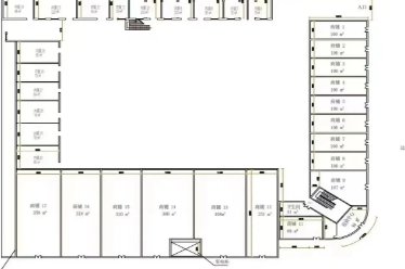
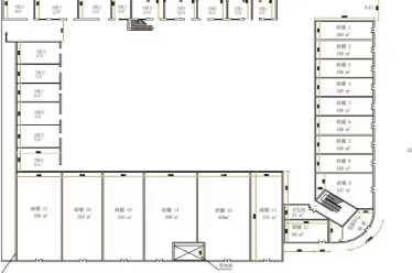
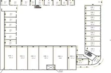
图片展示

品牌企业

联东U谷-京津冀 厂房、库房、办公-可环评办照出租出售

联东U谷-京津冀 厂房、库房、办公-可环评办照出租出售

大兴区魏善庄厂库房园区招租(高台库,整租分租均可)

大兴区魏善庄厂库房园区招租(高台库,整租分租均可)

荣盛产业新城  +++

荣盛产业新城 +++

“和谷”系列产业园介绍

“和谷”系列产业园介绍

 地坪类别:环氧自流评.工业地坪,水泥自流评 地下车库地坪.防静电自流评.运动球场聚氨酯砂浆自流评.PVC地板

地坪类别:环氧自流评.工业地坪,水泥自流评 地下车库地坪.防静电自流评.运动球场聚氨酯砂浆自流评.PVC地板

闽京蒲企业园厂房 办公研发楼出租

闽京蒲企业园厂房 办公研发楼出租

天津宁河芦台工业园9000-15000平米厂库房出租

天津宁河芦台工业园9000-15000平米厂库房出租

相关站点

南开厂房出租

南开工厂出租

南开厂库房出租

南开库房出租

南开仓库出租

南开冷库出租

南开保鲜库出租

南开恒温库出租

南开高台库出租

南开平库出租

南开综合楼出租

南开土地出租

南开场地出租

南开建设用地出租

南开工业用地出租

关于本站- 广告投放- 联系我们- 版权隐私- 免责申明- 意见反馈 返回顶部

版权所有:北京万汇优企科技有限公司 未经授权禁止转载、摘编、复制或建立镜像,如有违反,追究法律责任.

电话:010-56877550

京ICP备14014070号-6