搜房源
发布信息
服务热线:15601084512

客服微信>>

手机站 北京 天津 河北 辽宁 山东 其他站 发布信息

天津厂库房网> 天津厂房出售>北辰厂房出售

天津单层火车头厂房出售,12米超大挑高,无柱带牛腿

编号:138161

区域:

天津- 北辰

类别:

厂房出售

占地面积:

1400平米

价格:

1070.00元/㎡/天

建筑面积:

1700平米

车间面积:

1200平米

办公面积:

500平米

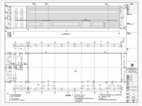
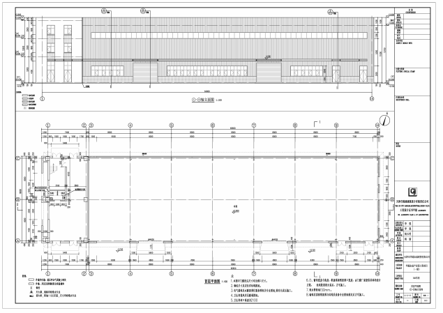
柱网跨度:

20米

层高:

12米

现配电容量:

90KVA

分割面积:

地址:

辰中路与永进道交口

浏览:

李经理

详细信息

北辰开发区永进路与辰中路交口

中泓置业 •中心企业港项目:地处天津,国家级产城融合示范区内(北辰开发区管委会旁,开发区核心区位),拥有优秀营商环境和产业扶持政策。

【产品优势】天津唯一单层轻钢厂房、2层独栋/双拼厂房

【产权明确】国有工业用地,50年独立产权。

【区位优势】处于京滨发展轴的中心点和京津冀协同发展的核心区位,在承接非首都功能疏解方面有得天独厚的区位优势。

【付款灵活】 可享受10年按揭贷款,缓解企业资金压力。

【户型多样】1080-6500平米,空间自由组合,以针对制造业企业使用的1层轻钢厂房、2层独栋/双拼厂房为主,兼顾部分适合科技型企业的2.5层和3层产品。首层7.2-12米层高设计。

单层12米轻钢厂房,适合装备制造企业使用,预留牛腿方便企业安装行车;

2层框架厂房,首层均设计2排窗,采光通风良好,同时也预留了企业后期做夹层的空间。

【厂房外观】外立面一改以往灰色为主的传统设计,采用色彩明快的白、灰两色相间仿石涂料。外观整体高贵、庄重的同时又体现了企业的科技感,同时仿石涂料耐污染强,不易褪色,可整体提升和保证入园企业形象。

【配套齐全】园区设置标准化食堂、员工公寓。

食堂提供各式风味的早中晚三餐,解决企业的后顾之忧。

员工公寓,解决企业住宿问题,针对不同群体,提供白领和蓝领公寓。另外,药店、物业服务,便利店、员工健身中心等其它生活配套齐全

【区位优越】北辰开发区永进路与辰中路交口(北辰开发区管委会旁,开发区核心区位)。项目距离北辰开发区管委会2KM、天津滨海国际机场 25 KM, 京滨城际北辰西站9 KM, 天津港60 KM,空运、海运、铁路都极为方便。

【氛围浓郁】项目周边集聚了有沃尔玛、海德堡、采埃孚、西门子等世界500强企业30多家。中国中车、中国兵器工业集团、国药集团、中国机械工业集团等为国内知名企业200多家。

【高速便利】项目周边京津塘、京津、滨保、津蓟、津保、京沪6条高速和京津、京福、津榆等9条国省干道纵横交错,联通北京、河北、山东以及东北三省,交通便捷。

【公共交通】拥有便捷的公共交通及地铁联通市区。

【招商行业】装备制造\仪器仪表\医疗器械\生物医药等多个行业。

【政策优势】入园企业享受国家级政策扶持!区位地处京津冀圈,政府实施土地、税收、人才的多项优惠扶持政策

【园区规模】占地230亩,总建筑面积12万平米。容积率1.0,绿化率15%,提供单层、2层及3层厂房及库房出租、出售。


图片展示

品牌企业

联东U谷-京津冀 厂房、库房、办公-可环评办照出租出售

联东U谷-京津冀 厂房、库房、办公-可环评办照出租出售

大兴区魏善庄厂库房园区招租(高台库,整租分租均可)

大兴区魏善庄厂库房园区招租(高台库,整租分租均可)

荣盛产业新城  +++

荣盛产业新城 +++

“和谷”系列产业园介绍

“和谷”系列产业园介绍

 地坪类别:环氧自流评.工业地坪,水泥自流评 地下车库地坪.防静电自流评.运动球场聚氨酯砂浆自流评.PVC地板

地坪类别:环氧自流评.工业地坪,水泥自流评 地下车库地坪.防静电自流评.运动球场聚氨酯砂浆自流评.PVC地板

闽京蒲企业园厂房 办公研发楼出租

闽京蒲企业园厂房 办公研发楼出租

天津宁河芦台工业园9000-15000平米厂库房出租

天津宁河芦台工业园9000-15000平米厂库房出租

相关站点

北辰厂房出租

北辰工厂出租

北辰厂库房出租

北辰库房出租

北辰仓库出租

北辰冷库出租

北辰保鲜库出租

北辰恒温库出租

北辰高台库出租

北辰平库出租

北辰综合楼出租

北辰土地出租

北辰场地出租

北辰建设用地出租

北辰工业用地出租

关于本站- 广告投放- 联系我们- 版权隐私- 免责申明- 意见反馈 返回顶部

版权所有:北京万汇优企科技有限公司 未经授权禁止转载、摘编、复制或建立镜像,如有违反,追究法律责任.

电话:010-56877550

京ICP备14014070号-6