搜房源
发布信息
服务热线:15601084512

客服微信>>

手机站 北京 天津 河北 辽宁 山东 其他站 发布信息

天津厂库房网> 天津厂房出租>东丽厂房出租

天津复地空港智汇产业园招商

编号:137400

区域:

天津- 东丽

类别:

厂房出租

占地面积:

33115平米

价格:

面议

建筑面积:

55659平米

车间面积:

55659平米

办公面积:

柱网跨度:

层高:

7米

现配电容量:

300KVA

分割面积:

地址:

天津空港经济区

浏览:

鲍先生

详细信息

中科复星产业基地位于天津空港经济区内核心区范围内,天津空港经济区位于滨海国际机场东北侧, 规划面积42平方公里,是滨海新区距离市区最近的经济功能区。天津空港经济区拥有我国华北、西北地区唯一、中国北方规模最大的保税区, 享有中国(天津)自由贸易试验区先行先试政策,是我国区域功能形态最为完善的区域,对外开放和和创新功能优势明显
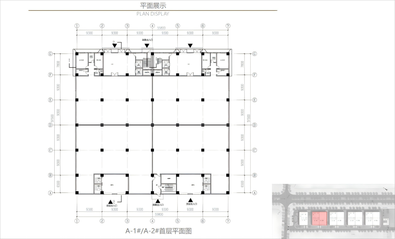
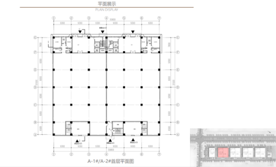
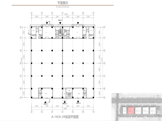
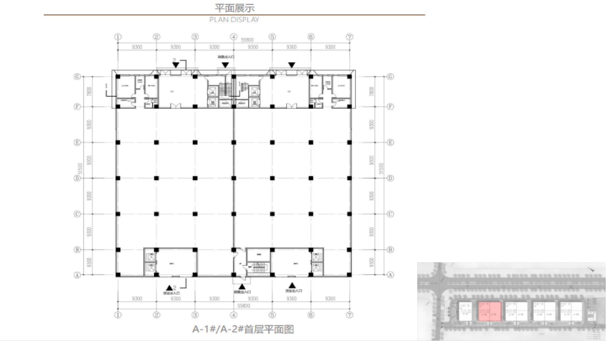
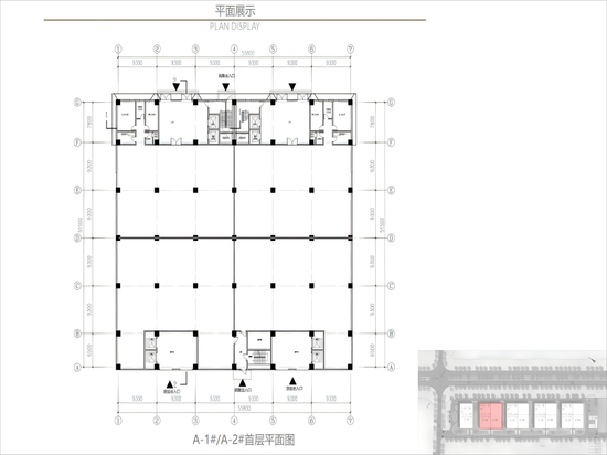
总占地33115㎡,总建筑面积55659㎡,地上建筑44374平米,地下11550平米,独栋7200平米/9000平米,双拼4500平米,单层730平米-790平米-1500平米/1800平米/3000平米,柱距9.3米*9.3米,混凝土框架架构,载重一层1T/㎡、标准层0.8T/㎡配电标准300W/平方米消防等级丙二类,机动车车位117个,非机动车位89个

主力户型2#楼 3层独栋

单户面积:730㎡-790㎡‘首层参数:高度7m;荷载1T/㎡

二层参数:高度7m;荷载800kg/㎡、三层参数:高度6.5m;荷载800kg/㎡

每层配电标准:300W/㎡、消防等级:丙二类、电梯配比:一客一货

3#-5#楼 3层独栋

单户面积:1500㎡(整层3000㎡)、首层参数:高度7m;荷载1T/㎡

二层参数:高度7m;荷载800kg/㎡、三层参数:高度6.5m;荷载800kg/㎡

每层配电标准:300W/㎡、消防等级:丙二类、电梯配比:两客一货

 基地秉承高标准、高品质原则以高端装备制造、医疗大健康、汽车零部件、智能智造及新一代信息技术等产业为招商主导方向, 致力于将基地打造成聚合生产制造、研发设计、中试成果转化、生产企业总部、产品展示和生产配套功能为一体的都市型产业集聚地。

基地将配建1.2万㎡的城市主题公园,打造花园式生产基地,为给入驻企业提供舒适、健康的办公生产环境、区域内拥有完善配套设施,全方位优化园区舒适度


图片展示

品牌企业

大兴区魏善庄厂库房园区招租(高台库,整租分租均可)

大兴区魏善庄厂库房园区招租(高台库,整租分租均可)

河北省定州全联科技工业园区厂房招商

河北省定州全联科技工业园区厂房招商

联东U谷-京津冀 厂房、库房、办公-可环评办照出租出售

联东U谷-京津冀 厂房、库房、办公-可环评办照出租出售

荣盛产业新城

荣盛产业新城

“和谷”系列产业园介绍

“和谷”系列产业园介绍

 地坪类别:环氧自流评.工业地坪,水泥自流评 地下车库地坪.防静电自流评.运动球场聚氨酯砂浆自流评.PVC地板

地坪类别:环氧自流评.工业地坪,水泥自流评 地下车库地坪.防静电自流评.运动球场聚氨酯砂浆自流评.PVC地板

天津宁河芦台工业园9000-15000平米厂库房出租

天津宁河芦台工业园9000-15000平米厂库房出租

相关站点

东丽厂房出租

东丽工厂出租

东丽厂库房出租

东丽库房出租

东丽仓库出租

东丽冷库出租

东丽保鲜库出租

东丽恒温库出租

东丽高台库出租

东丽平库出租

东丽综合楼出租

东丽土地出租

东丽场地出租

东丽建设用地出租

东丽工业用地出租

关于本站- 广告投放- 联系我们- 版权隐私- 免责申明- 意见反馈 返回顶部

版权所有:北京万汇优企科技有限公司 未经授权禁止转载、摘编、复制或建立镜像,如有违反,追究法律责任.

电话:010-56877550

京ICP备14014070号-6