搜房源
发布信息
服务热线:15601084512

客服微信>>

手机站 北京 天津 河北 辽宁 山东 其他站 发布信息

天津厂库房网> 天津产业园出售>北辰产业园出售

北辰单层带院厂房12米挑高(能环评能贷款能办房本本地开发商)

编号:135448

区域:

天津- 北辰

类别:

产业园出售

占地面积:

0平米

价格:

面议

房屋面积:

层高:

12米

分割面积:

地址:

天津市北辰区西堤头工业园

浏览:

王萌

详细信息

       华北江铜智慧产业园位于天津陆路港物流装备产业园西堤头分园,作为距离天津市区的市级工业园区,处于中心城区北部,身居北京-天津-渤海经济圈的中心,京津唐三市中心地带,与天津滨海新区相毗邻,是服务于北京和天津的工业中心,处于京滨发展轴的中心点和京津冀协同发展的核心区位,在承接非首都功能疏解方面有得天独厚的区位优势。其重要的区位优势、政策优势、资源优势、产业优势、环境优势彰显的越来越突出。

华北江铜智慧产业园总规划占地面积212亩,规划建筑面积约9.3万平米。整体项目定位为打造京津冀区域有标杆意义的智能制造有色金属和高端装备制造示范区项目,建设内容包括智能制造聚集区、研发办公区、商务配套区等。其中,首期招商区域占地约100亩,规划建筑面积约5万平米,项目整体定位集生产、研发、办公 于一体的低密高端生态创新新型产业园区,项目结合区域主导产业特点,吸引相关高新技术产业,形成聚合上下游高端产业的集群,以高端装备制造、生物医药、新一代信息技术、新能源新材料、检验检测等为主导产业,本着高标准、高品质的原则,将项目打造成高端技术产业现代化园区。


【区位】周边有京津高速、津蓟高速、津宁高速、蓟汕高速4条高速公路环绕项目,3.5公里内4条高速均有出入口,308北杨公路、205国道津榆公路贯通项目,距北辰高铁站6公里,2022年北辰站通车后到达北京南站仅需30分钟。项目距天津滨海国际机场13公里,天津港 45公里。项目北距北京市区85公里,西距雄安新区110公里,东距唐山市区65公里,距天津新外环5公里。

【交通】项目东侧为福康路,南侧为华康道,连接杨北公路。项目南侧的津宁高速经志成道延长线,可与天津东纵、东北半环两条城区快速路相接,直接连接铁东路、西青道两条城区快速路,驱车15分钟便可到达中心城区。


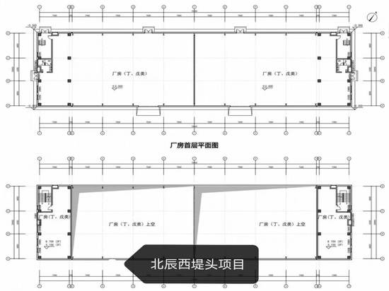
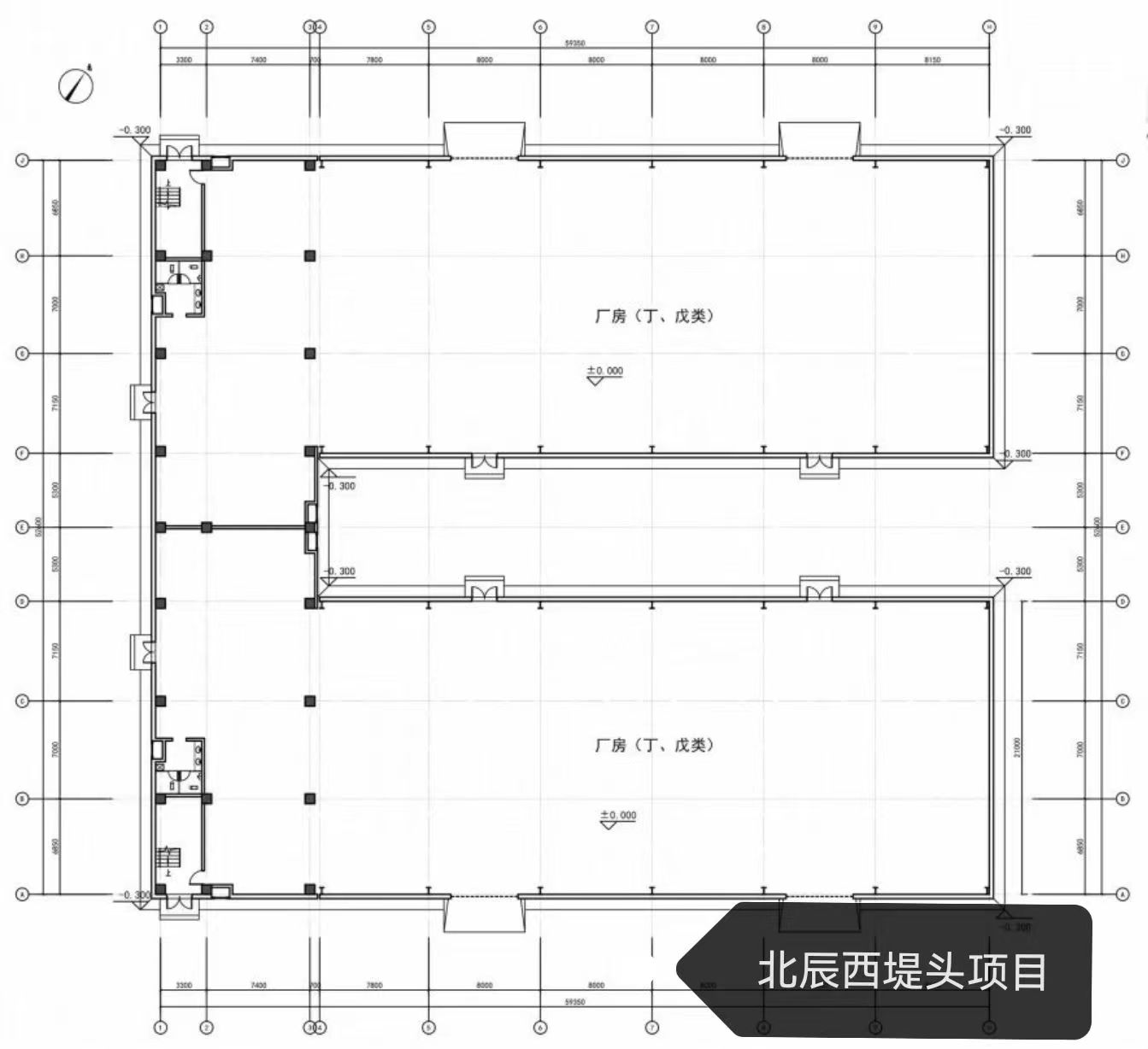
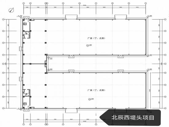
【户型】单层厂房 1000-7000平米 

【层高】单层厂房挑高12米

【户型】三层厂房800-1300平米

【层高】首层挑高7.2米,二层4.2米,三层3.6米

【承重】首层承重3吨/㎡,二层以上承重500公斤/㎡

【年限】大产权50年,手续齐全

【价格】单层厂房5500元/㎡,三层厂房4800元/㎡

【付款】全款,分期,按揭 (首付三成)

【交房】2023年3月交房


图片展示

品牌企业

联东U谷-京津冀 厂房、库房、办公-可环评办照出租出售

联东U谷-京津冀 厂房、库房、办公-可环评办照出租出售

大兴区魏善庄厂库房园区招租(高台库,整租分租均可)

大兴区魏善庄厂库房园区招租(高台库,整租分租均可)

荣盛产业新城  +++

荣盛产业新城 +++

“和谷”系列产业园介绍

“和谷”系列产业园介绍

 地坪类别:环氧自流评.工业地坪,水泥自流评 地下车库地坪.防静电自流评.运动球场聚氨酯砂浆自流评.PVC地板

地坪类别:环氧自流评.工业地坪,水泥自流评 地下车库地坪.防静电自流评.运动球场聚氨酯砂浆自流评.PVC地板

闽京蒲企业园厂房 办公研发楼出租

闽京蒲企业园厂房 办公研发楼出租

天津宁河芦台工业园9000-15000平米厂库房出租

天津宁河芦台工业园9000-15000平米厂库房出租

相关站点

北辰厂房出租

北辰工厂出租

北辰厂库房出租

北辰库房出租

北辰仓库出租

北辰冷库出租

北辰保鲜库出租

北辰恒温库出租

北辰高台库出租

北辰平库出租

北辰综合楼出租

北辰土地出租

北辰场地出租

北辰建设用地出租

北辰工业用地出租

关于本站- 广告投放- 联系我们- 版权隐私- 免责申明- 意见反馈 返回顶部

版权所有:北京万汇优企科技有限公司 未经授权禁止转载、摘编、复制或建立镜像,如有违反,追究法律责任.

电话:010-56877550

京ICP备14014070号-6