搜房源
发布信息
服务热线:15601084512

客服微信>>

手机站 北京 天津 河北 辽宁 山东 其他站 发布信息

天津厂库房网> 天津厂房出租>东丽厂房出租

出售带院子厂房,新厂房,大开发商,有环评,有产权

编号:130983

区域:

天津- 东丽

类别:

厂房出租

占地面积:

0平米

价格:

7000.00元/㎡/天

建筑面积:

车间面积:

办公面积:

柱网跨度:

层高:

7.5米

现配电容量:

80KVA

分割面积:

地址:

华明大道

浏览:

贾经理

详细信息

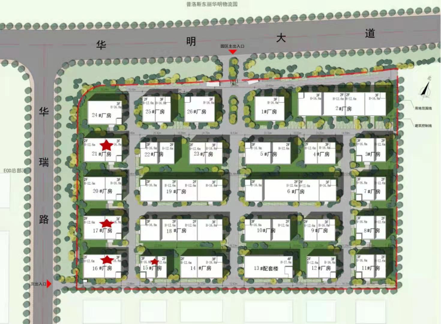
垠坤未来汇,独栋厂房

【项目地址】 天津市东丽区华明大道与华瑞路交口

【 交  通 】紧邻津汉公路、天津大道,毗邻津滨高速、京津高速,10分钟直达天津滨海国际机场,紧邻天津地铁站2号线

【出售面积】双拼、  独栋:881.35㎡-3000㎡   

【出售报价】6500元/平米

【产品类型】生产研发办公一体,二层半结构,首层层高7.5米、二层4.5米、三层4.2米,赠送小院、露台花园、固定车位。


图片展示

品牌企业

相关站点

东丽厂房出租

东丽工厂出租

东丽厂库房出租

东丽库房出租

东丽仓库出租

东丽冷库出租

东丽保鲜库出租

东丽恒温库出租

东丽高台库出租

东丽平库出租

东丽综合楼出租

东丽土地出租

东丽场地出租

东丽建设用地出租

东丽工业用地出租

关于本站- 广告投放- 联系我们- 版权隐私- 免责申明- 意见反馈 返回顶部

版权所有:北京万汇优企科技有限公司 未经授权禁止转载、摘编、复制或建立镜像,如有违反,追究法律责任.

电话:010-56877550

京ICP备14014070号-6