搜房源
发布信息
服务热线:15601084512

客服微信>>

手机站 北京 天津 河北 辽宁 山东 其他站 发布信息

天津厂库房网> 天津厂房出租>武清厂房出租

天津武清开发区4646平米厂房出租 租金面议

编号:119257

区域:

天津- 武清

类别:

厂房出租

占地面积:

0平米

价格:

面议

建筑面积:

车间面积:

办公面积:

柱网跨度:

层高:

现配电容量:

分割面积:

地址:

天津武清开发区

浏览:

李先生

详细信息

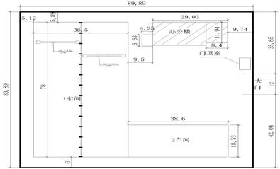
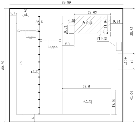
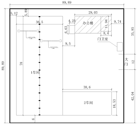
所在区域:武清开发区                                 出租价格:面议                 

厂房面积:3600平米                                  办公面积:1044平米

变压器容量:200kva                                   地面承载力:160mm厚混凝土

天车:5吨 两部                                      厂房消防等级:戊

1号厂房长78米。宽36.5米。层高10.8米。面积2847平米。5吨天车2台。

2号厂房长38.6米。宽18.53米。层高7米。面积715.3平米。钢构厂房。

办公楼1046平,三层

图片展示

品牌企业

相关站点

武清厂房出租

武清工厂出租

武清厂库房出租

武清库房出租

武清仓库出租

武清冷库出租

武清保鲜库出租

武清恒温库出租

武清高台库出租

武清平库出租

武清综合楼出租

武清土地出租

武清场地出租

武清建设用地出租

武清工业用地出租

关于本站- 广告投放- 联系我们- 版权隐私- 免责申明- 意见反馈 返回顶部

版权所有:北京万汇优企科技有限公司 未经授权禁止转载、摘编、复制或建立镜像,如有违反,追究法律责任.

电话:010-56877550

京ICP备14014070号-6