搜房源
发布信息
服务热线:15601084512

客服微信>>

手机站 北京 天津 河北 辽宁 山东 其他站 发布信息

天津厂库房网> 天津库房出租>周边库房出租

天津北辰新建4.5万 丙二类高平台物流仓库出租

编号:115213

区域:

天津- 周边

类别:

库房出租

占地面积:

100000平米

价格:

1.00元/㎡/天

建筑面积:

45000平米

库房面积:

45000平米

办公面积:

1000平米

柱网跨度:

1000米

层高:

9.0米

现配电容量:

分割面积:

地址:

北辰 - 青光 - G104国道与腾达道路口

浏览:

赵经理

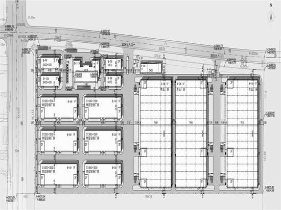
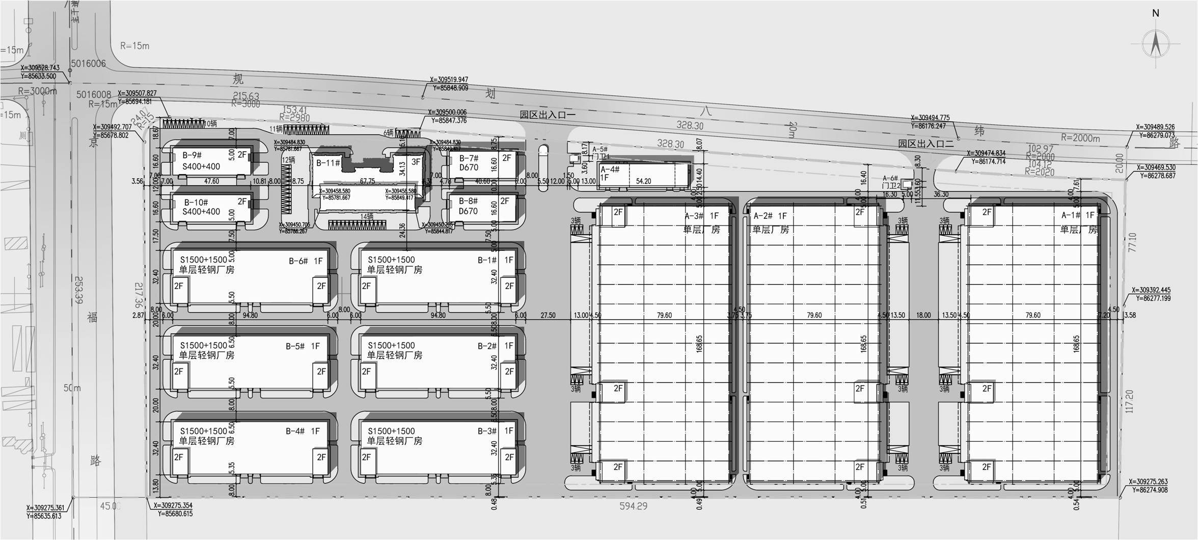
详细信息

本项目位于天津北辰区青光镇腾达道联东北方耀谷二期 层高9米,卸货平台高1.3米,宽4.5米带升降板,雨棚宽6米,自动喷淋系统,配备发电机组,保证电力供应,24小时安保巡逻,欢迎您现场考察。

图片展示

品牌企业

联东U谷-京津冀 厂房、库房、办公-可环评办照出租出售

联东U谷-京津冀 厂房、库房、办公-可环评办照出租出售

大兴区魏善庄厂库房园区招租(高台库,整租分租均可)

大兴区魏善庄厂库房园区招租(高台库,整租分租均可)

荣盛产业新城  +++

荣盛产业新城 +++

“和谷”系列产业园介绍

“和谷”系列产业园介绍

 地坪类别:环氧自流评.工业地坪,水泥自流评 地下车库地坪.防静电自流评.运动球场聚氨酯砂浆自流评.PVC地板

地坪类别:环氧自流评.工业地坪,水泥自流评 地下车库地坪.防静电自流评.运动球场聚氨酯砂浆自流评.PVC地板

闽京蒲企业园厂房 办公研发楼出租

闽京蒲企业园厂房 办公研发楼出租

天津宁河芦台工业园9000-15000平米厂库房出租

天津宁河芦台工业园9000-15000平米厂库房出租

相关站点

周边厂房出租

周边工厂出租

周边厂库房出租

周边库房出租

周边仓库出租

周边冷库出租

周边保鲜库出租

周边恒温库出租

周边高台库出租

周边平库出租

周边综合楼出租

周边土地出租

周边场地出租

周边建设用地出租

周边工业用地出租

关于本站- 广告投放- 联系我们- 版权隐私- 免责申明- 意见反馈 返回顶部

版权所有:北京万汇优企科技有限公司 未经授权禁止转载、摘编、复制或建立镜像,如有违反,追究法律责任.

电话:010-56877550

京ICP备14014070号-6